Apraksts:
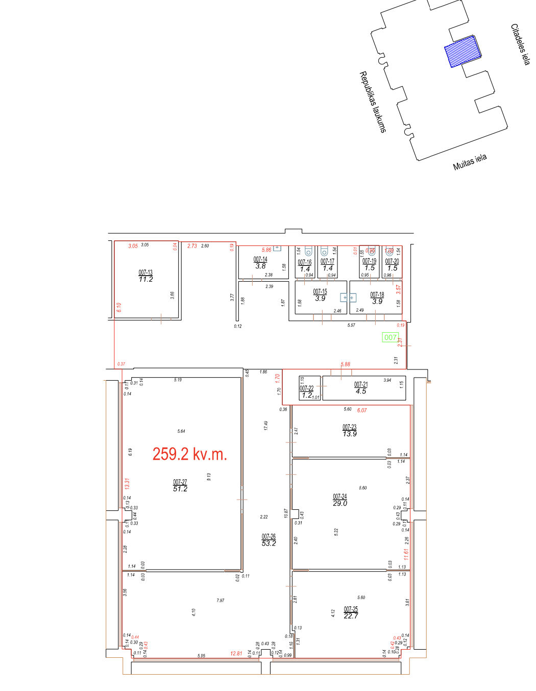
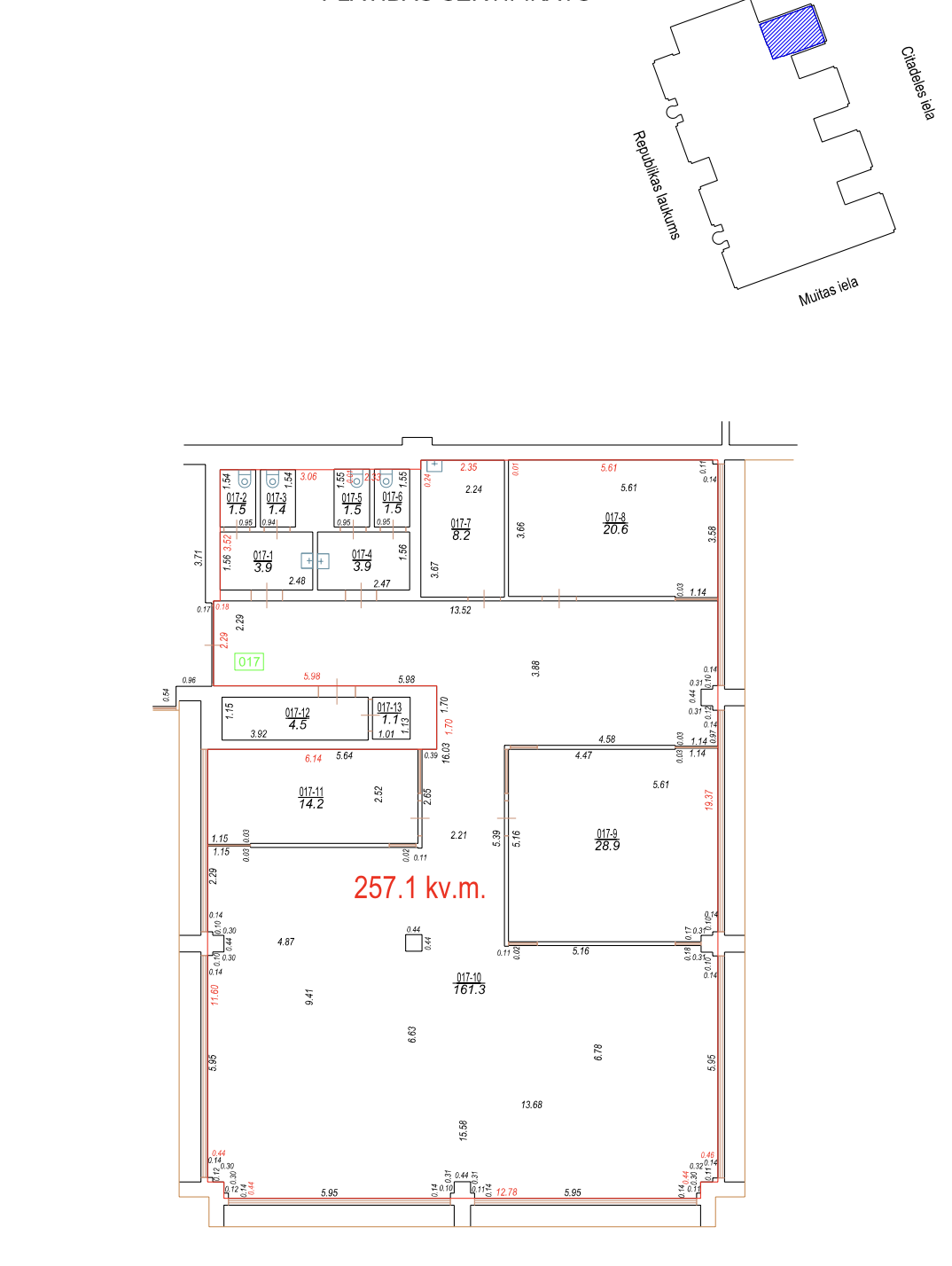
Pieejams birojs ar kopējo platību 516 m² centra rajonā.
Birojs atrodas 4. stāvā.
Telpās ir lieli logi un griestu augstums vidēji ~3 metri. Telpas ir funkcionāli sadalītas un piemērotas biroja vajadzībām, ar iespēju tās pielāgot nomnieka specifiskajām prasībām.
Birojs sastāv no divām savstarpēji saistītām daļām, nodrošinot ērtu un elastīgu plānojumu.
Papildus ir iespēja nākotnē paplašināt telpas līdz ~576 m² vai pat ~600 m²+, kas padara šo risinājumu īpaši piemērotu uzņēmumiem ar izaugsmes plāniem.
Ēka ir moderna A klases biroju ēka ar centrālo apkuri, ventilācijas un kondicionēšanas sistēmām.
Pieejama plaša daudzstāvu autostāvvieta ēkā, kā arī klientu stāvvietas ēkas priekšā.
Papildus ērtībās ietilpst dušas un skapīši ēkas pagrabstāvā, 1. stāvā pusdienu restorāns, kā arī iespēja izmantot aprīkotas konferenču telpas ar ietilpību līdz 250 cilvēkiem.
Cena: 16.50 EUR/m²
Apsaimniekošana: open-book
Komunālie: pēc skaitītājiem
Sazinieties ar mums, lai uzzinātu vairāk vai vienotos par apskati. 🏢
Pārskats
- 10
- 4
- 516 m²
Adrese
-
Rajons: Centrs, Labais Krasts
