Apraksts:
🏢 Biroju Telpu Piedāvājums Rīgas Centrā 🏢
Tākā birojs vel ir aizņemts lidz decebrim, bildes jautāt privāti.
Biroju pirmīt nomāja Soreinen adovkātu birojam.
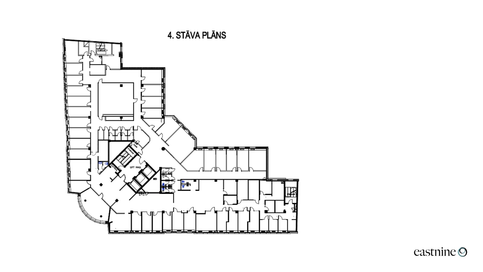
Kopējā platība: 700m²
Pieejams no 1400m2 sadalīts birojs ar kabinetu izkārtojumu
Atsevišķas sapulču telpas,
WC, duša,
virtuve
servera telpa.
Telpas atrodas ēkas 4. stāvā, 2. stāvā pieejama koplietošanas terase.
Ēkas 1. stāvā ir administrators, bet pazemes autostāvvietas pieejamas pagrabstāvā.
Telpas iespējams pielāgot nomnieka vajadzībām. Ēkai ir piešķirti LEED Gold un Fitwel sertifikāti.
Cena: 16 EUR/m²
Apsaimniekošana: pēc “open book” principa
Komunālie maksājumi: pēc skaitītājiem
+ PVN
Sazinieties ar mums, lai uzzinātu vairāk un vienotos par telpu apskati.
Pārskats
- 10
- 3
- 700 m²
Adrese
-
Rajons: Centrs, Labais Krasts
Šajā īpašumā pieejams arī:
Krišjāņa Valdemāra iela 21
- Mēnesī 5,400€
- 20€/m²
