Apraksts:
Izīrē modernas biroja telpas biznesa kvartālā Skanstes rajonā!
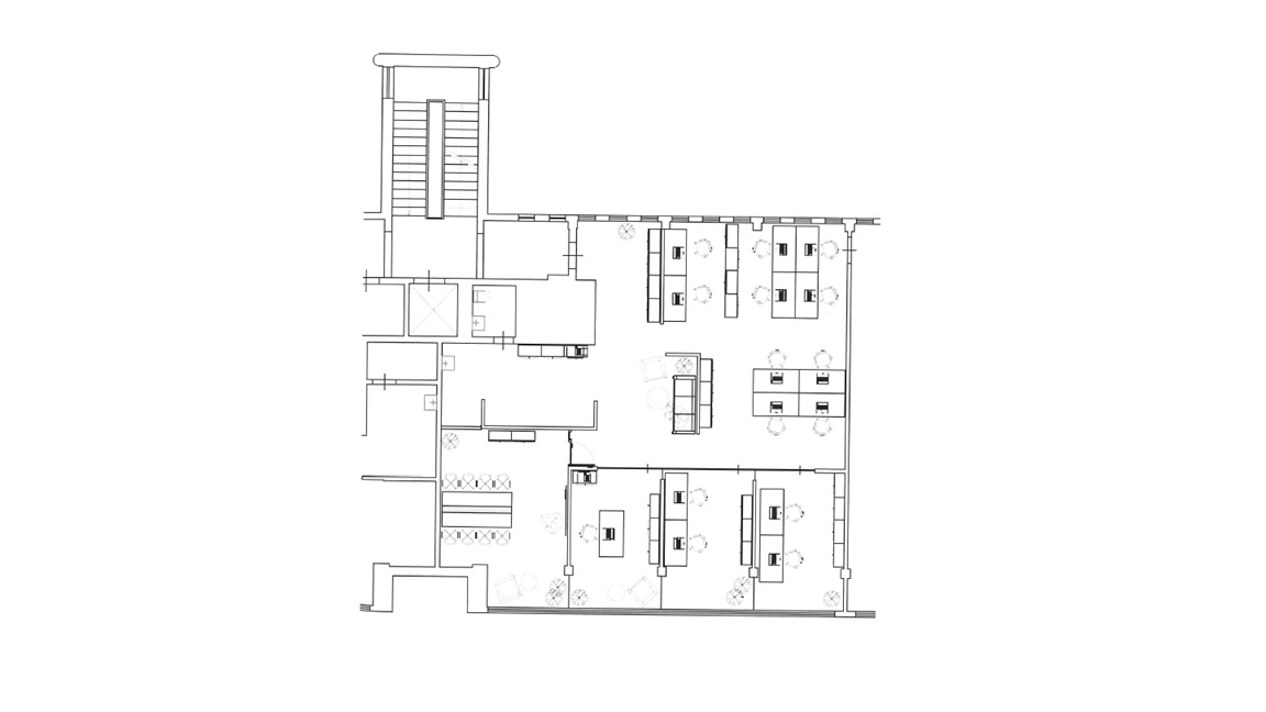
Piedāvājam nomāt biroja telpas ēkas 4. stāvā ar kopējo platību 190 m². Telpas ir plašas un funkcionālas, ar pārdomātu plānojumu — viena atvērta darba zona, trīs slēgti kabineti un viena sapulču telpa.
Ēka: BREEAM sertificēta, nodrošina ilgtspējīgu darba vidi ar modernām ērtībām.
- Lokalizācija: Ērti sasniedzama vieta ar visu nepieciešamo ikdienai.
- Stāvvieta: Plaša virszemes un pazemes stāvvieta. Klientiem bezmaksas stāvvieta.
- Pielāgošana: Telpas tiek pielāgotas Jūsu vajadzībām un vēlmēm.
Biroju apsaimniekošana:
- Biroju apsaimniekotāji ir vienmēr uz vietas, gatavi risināt jebkurus jautājumus.
- Pieejami ēdienu automāti, mašīnu wash box, bērnudārzs, “carsharing” auto novietnes, auto elektrouzlādes stacijas (22 kW), zobārstniecība, skaistumkopšana, dermatoloģija, podoloģija, ginekologs.
- Tuvāko divu gadu laikā plānots ieguldīt 8 000 000 EUR modernizācijā, energoefektivitātē, infrastruktūrā un darbinieku vides uzlabošanā.
Sabiedriskais transports:
- Blakus ēkai autobuss (3), trolejbuss (11, 24, 49).
Cena: 13,50 EUR / m²
Apsaimniekošana: 2,50 EUR / m²
Autostāvvieta: 40 EUR
Komunālie maksājumi: Saskaņā ar skaitītājiem
+PVN
Šajā kvartālā ir pieejamas vairākas telpas. Sazinieties, lai rezervētu apskati! 🏢✨📞
Pārskats
- 5
- 1
- 190 m²
360° Virtualā tūre
Video
Adrese
-
Rajons: Labais Krasts, Skanste
Šajā īpašumā pieejams arī:
Kontakta informācija
Apskatīt sludinājumuLīdzīgi īpašumi
Balasta dambis 2
Mēnesī 40,800€
Balasta dambis 2
Mēnesī 28,220€
