Brīvības gatve 197
- Mēnesī 4,711€
- 7€/m²
Apraksts:
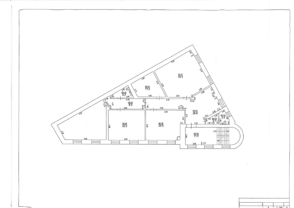
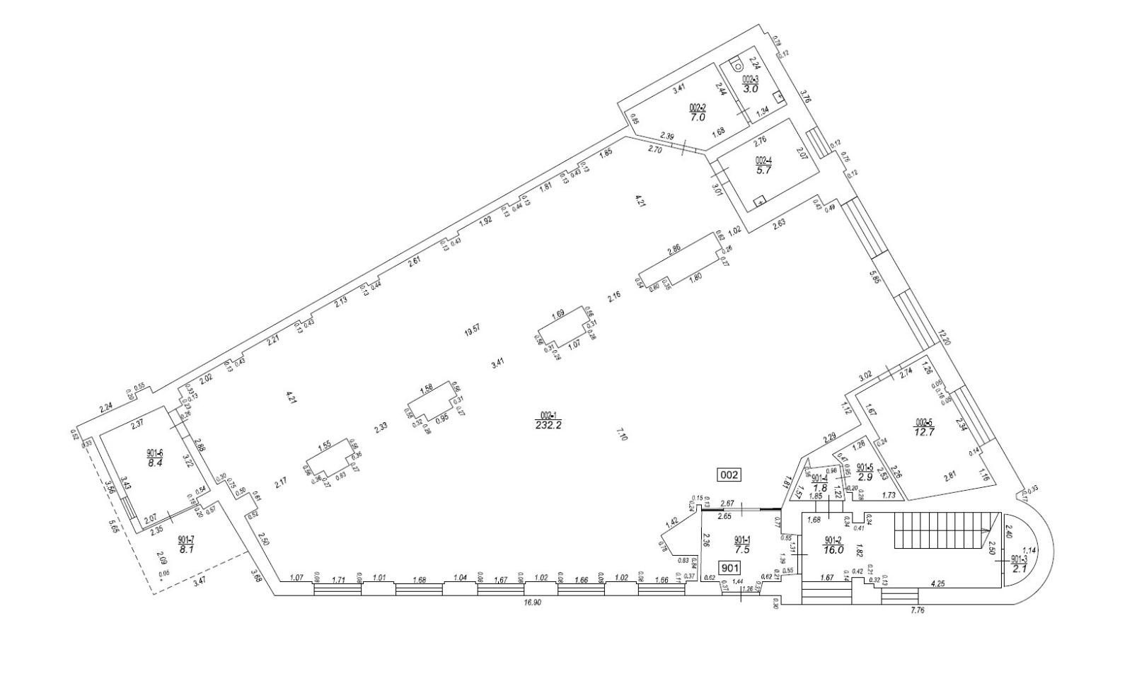
Pieejama biroja ēka ar kopējo platību 673 m² Teikas rajonā
3 stāvu ēka ar gatavu apdari, PVC atveramiem logiem un griestu augstumu ~3 metri. Ir pieejami 5 sānmezgli — viens 1. stāvā, bet katrā nākamajā pa diviem.
Telpas ir piemērotas biroja vajadzībām, savukārt 1. stāvā iespējams izveidot veikalu. Telpas var tikt pielāgotas arī salonam, medicīnas iestādei vai citām komerciālām vajadzībām.
Ēkas fasāde ir renovēta un reprezentatīva. Ēkai ir centrālā apkure.
Pieejama autostāvvieta pie ēkas – maksas.
Papildu ērtības: drošības sistēma un ērta piekļuve ar auto.
Cena: 7 EUR/m²
Komunālie: Pēc skaitītājiem
Reklāmas izvietošana uz fasādes: Jā, iespējams pēc vienošanās
Sazinieties ar mums, lai uzzinātu vairāk vai vienotos par apskati. 🏢
Pārskats
- 13
- 5
- 673 m²
Adrese
-
Rajons: Labais Krasts, Teika, VEF
